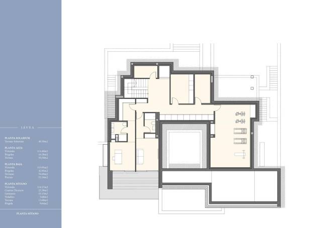
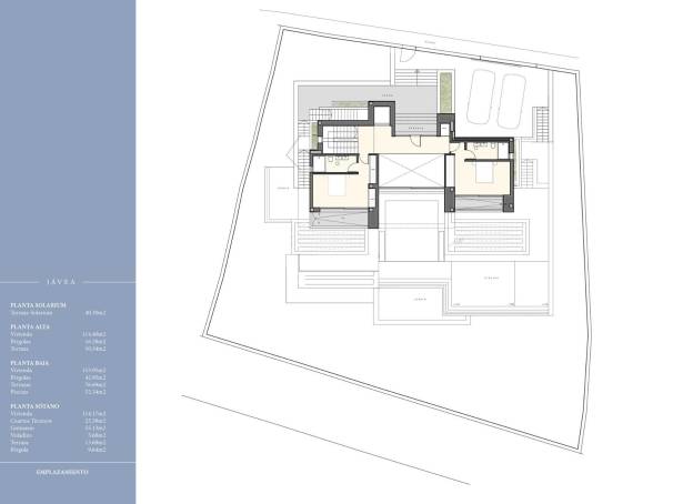
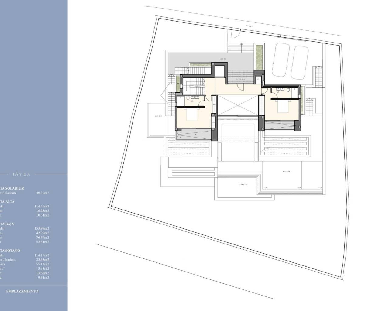
Luxury New Build Villa with Sea Views Near Granadella Beach in Javea Exclusive Villa in the Prestigious Granadella Area of Javea Discover an exceptional luxury villa currently under construction in the highly sought after Granadella area of Javea on the northern Costa Blanca. Located within a peaceful natural environment next to the protected forest park and just a short distance from the famous Cala Granadella, this property offers a rare combination of privacy, spectacular sea views and proximity to one of the most beautiful coves in Spain. Javea is renowned for its stunning coastline, charming old town and excellent year round climate. The town offers a vibrant lifestyle with international restaurants, marinas, golf courses and a wide range of outdoor activities. Its mix of Mediterranean charm and modern services makes it one of the most desirable destinations on the Costa Blanca for both permanent residence and luxury holiday homes. Modern Architecture with Spacious Living Areas This elegant designer villa is set on a generous plot of 925 m2 and offers an impressive built area of approximately 677 m2 distributed across three levels. The contemporary architecture blends seamlessly with the surrounding natural landscape while maximizing natural light and panoramic views. The property includes four spacious bedrooms, five bathrooms and one guest toilet. Large open plan living areas connect effortlessly with the outdoor terraces, creating a bright and comfortable living environment designed for modern Mediterranean living. The villa also includes a private office, a fully equipped gym, storage rooms and covered parking for two vehicles. An elevator connects the different levels of the home for maximum convenience and accessibility. Panoramic Sea Views and Outdoor Living One of the most impressive features of the property is its outdoor space. The villa offers approximately 140 m2 of open terraces that provide spectacular views of the Mediterranean Sea and the surrounding mountains. The infinity swimming pool overlooks the coastline and the nearby Granadella beach, creating a unique setting to relax and enjoy the natural beauty of the area. The landscaped garden with trees and an automatic irrigation system further enhances the peaceful atmosphere of the property. Premium Finishes and Smart Home Technology The villa is built with high quality materials and the latest construction technologies to ensure comfort, security and energy efficiency. Infinity swimming pool with sea views Elevator connecting all levels Designer kitchen equipped with NEFF appliances Underfloor heating throughout the property Ducted air conditioning system with independent AIRZONE thermostats NIESSEN Free Home domotic system for lighting and blinds control Motorized blinds throughout the villa Video intercom and pre installation for alarm system Landscaped garden with irrigation system These features provide a modern, comfortable and secure environment designed for luxury living. Prime Location Close to Beaches and Amenities Cala Granadella 0.3 km Arenal Beach 7 km La Sella Golf 18 km Denia 20 km Alicante Elche Airport 100 km Valencia Airport 120 km Secure Your Luxury Villa in Javea This exceptional villa offers contemporary design, breathtaking sea views and a prime location near one of the most beautiful beaches on the Costa Blanca. Contact us today to receive more information or arrange a private viewing and discover your future luxury home in Javea. 547